В центре Минска продается отдельный жилой дом — сталинка на четыре квартиры. Как выглядит и сколько стоит?. 21.by

В центре Минска продается отдельный жилой дом — сталинка на четыре квартиры. Как выглядит и сколько стоит?

21.09.2023 08:01 — Новости Экономики | realt.by  
Размер текста:
A
A
A

Источник материала: realt.by

Вместе с ОДО «МакроИнжиниринг» мы продолжаем делиться уникальными объектами, которые можно купить для жизни и бизнеса. Вы знали, что в центре Минска продается жилой дом-сталинка на четыре квартиры? Мы побывали внутри, узнали, чем он интересен и сколько стоит.


В этой локации — все преимущества центра, зелень и тишина

Адрес дома — улица Золотая Горка, 6А. От Площади Победы нужно идти в сторону Троицкого костела, а затем углубиться во дворы. Или же свернуть в районы жилой застройки от Белгосфилармонии. Так или иначе, это самый центр со всеми его преимуществами — двумя станциями метро поблизости, ресторанами, кофейнями и магазинами на проспекте Независимости, огромным количеством культурных пространств.

За интеллигентную атмосферу здесь отвечают корпуса БГУИРа и МГЛУ, за тишину и спокойствие — малоэтажность застройки и огромное количество зелени, за транспортную доступность — автобусы, троллейбусы, маршрутки, трамваи и метро.



Локация уже максимально привлекательная для жизни, бизнеса и инвестиций, а в перспективе она станет еще лучше. Здесь не планируется уплотнение жилой застройки, максимум изменений — еще больше объектов инфраструктуры и маршрутов транспорта.



Внутри дома — четыре квартиры с крепкими стенами и высокими потолками

Дом площадью 228 м² занимает участок, границы которого проходят по отмостке. Вокруг — зеленая территория, которую можно благоустроить, дворы с детскими площадками и местами для отдыха.



Двухэтажный дом стоит на ленточно-бетонном фундаменте, стены — из двух слоев кирпича общей толщиной 510 мм, перекрытия — из балок и железобетона. Кровля скатная, покрыта шифером. Он качественный и крепкий, с большими окнами и угловыми лоджиями. 



Дом построили в 1952 году: сейчас такие сталинки в центре города особо ценятся и за качество, и за архитектурную эстетику, и за трехметровые потолки.


Дверь подъезда закрыта на замок, окна закрыты фанерой, на стенах — камеры видеонаблюдения. Так компания «МакроИнжиниринг» обеспечивает сохранность дома и безопасность окружающих.



Вместе с представителем компании попадаем внутрь: сначала — в подъезд с хорошо сохранившейся деревянной лестницей, потом — в просторные трехкомнатные квартиры.





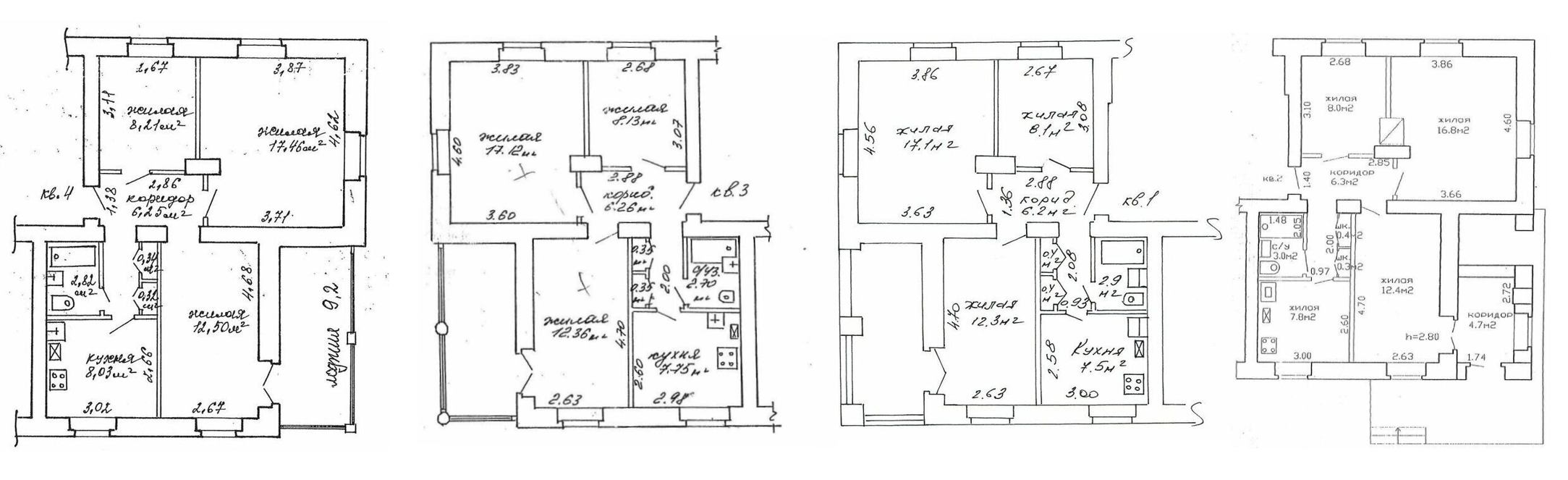
Каждая из них спроектирована так, что дневной свет будет попадать в внутрь с трех сторон, исключая только ту, что соприкасается с подъездом. Самые большие жилые комнаты по нынешним меркам можно назвать мастер-спальнями — площади от 16,8 до 17,46 м² позволяют сделать здесь гардеробы или кабинеты (чтобы лучше рассмотреть планировки, кликните на картинку).


Есть подключение ко всем коммуникациям: газ, электричество, тепловые сети, центральные водопровод и канализация. Рядом есть трансформаторная подстанция — благодаря этому в доме можно установить электроплиты. Внутри некоторых квартир видим печи с дымоходами — при правильном восстановлении их тоже можно использовать.



Как купить этот дом?

Дом нуждается в серьезной реконструкции — начиная с отделки фасада и вставки окон и заканчивая внутренними работами. Это дает большие возможности на старте, так как здание можно менять в соответствии со своими нуждами. Например, благоустроить для жизни или вывести в нежилой фонд для открытия бизнеса. Капитальное строение подойдет для офисов, магазинов, кафе, салонов-красоты, мастерских.

Стоимость четырехквартирного жилого дома в центре Минска — 250 000 долларов (расчет в белорусских рублях по курсу Нацбанка РБ). Узнать о доме больше и записаться на просмотр вы можете по телефонам +375 (29) 165-66-67, +375 (17) 243-99-55, +375 (17) 243-99-88, +375 (29) 553-66-67 и по почте makroing@yandex.ru. Для обратного звонка оставляйте свой номер в форме ниже.

 
Теги: Минск
 
 
Чтобы разместить новость на сайте или в блоге скопируйте код:
На вашем ресурсе это будет выглядеть так
Вместе с ОДО «МакроИнжиниринг» мы продолжаем делиться уникальными объектами, которые можно купить для жизни и бизнеса. Вы знали, что в центре Минска продается...
 
 
 

РЕКЛАМА

Архив (Новости Экономики)

РЕКЛАМА


Яндекс.Метрика