В Минске презентовали новый бизнес-центр прямо возле метро и с видом на парк. Сколько стоит аренда?. 21.by

В Минске презентовали новый бизнес-центр прямо возле метро и с видом на парк. Сколько стоит аренда?

26.03.2025 08:01 — Новости Экономики | realt.by  
Размер текста:
A
A
A

Источник материала: realt.by

21 марта в Минске прошла презентация нового бизнес-центра Prizma. Руководителей и специалистов агентств недвижимости, экспертов по коммерческим площадям, а также представителей Realt встретили в конференц-зале. Сотрудники компании-застройщика «Сигмаполюс» рассказали о ключевых особенностях бизнес-центра, ответили на вопросы гостей и провели экскурсию по доступным для аренды этажам. Гостям встречи показали пространства для работы площадью от 80 до 1700 м² на этаже, с возможностью аренды для крупных компаний и 12 000 м². Все приглашенные смогли полюбоваться видами из окон и с балконов БЦ Prizma — они увидели парк 50-летия Октября, новый Национальный футбольный стадион, жилые и деловые кварталы города в радиусе 6-7 километров вокруг. Рассказываем, что сейчас предлагают арендаторам площадей в новом бизнес-центре.


7 скоростных лифтов, минимум расходов на уборку и планировочные решения от дизайнеров

Встреча представителей ООО «Сигмаполюс» и более 50 экспертов рынка недвижимости началась в конференц-зале на 5 этаже БЦ Prizma (Партизанский проспект, 79). Гостей ждали фуршет, подарки от компании-застройщика, получасовой нетворкинг с коллегами. Презентация бизнес-центра состояла из нескольких этапов.





Кирилл Счаснович, заместитель директора по строительству ООО «Сигмаполюс», рассказал о принципах зеленого строительства, которые были соблюдены при возведении бизнес-центра. Он отметил, что проект реализован с учетом требований современных арендаторов — с гибкими планировками и масштабируемыми пространствами, потолками высотой в 3,3-3,6 метра (в зависимости от этажа), 7 скоростными лифтами и режимом работы 24/7. 



Большое внимание уделили экологическим требованиям и комфорту сотрудников на местах:

  • внедрили умные системы управления энергопотреблением;
  • установили приборы для рекуперации тепла и вентиляции с фильтрацией воздуха, датчики контроля уровня СО2 в помещениях;
  • предоставили возможность зонирования с индивидуальным контролем температуры.

Специалисты компании-застройщика позаботились об IT-инфраструктуре — это и высокоскоростной интернет, и видеонаблюдение, и система контроля и управления доступом, и пожарная сигнализация.



Бизнес-центр Prizma строился по стандартам LEED & BREEAM. Это подтверждает, что объект и пространства внутри экологичны, безопасны, сделаны с вниманием к здоровью специалистов. Например, комплекс мер для минимизации попадания грязи внутрь офисов даст возможность сэкономить время, средства и ресурсы на уборке.

Помещения доступны для людей с ограниченными возможностями — компания-застройщик предусмотрела пандусы, тактильную навигацию.

Кирилл Счаснович поделился предложением от ООО «Сигмаполюс»: девелопер, у которого есть договорные отношения со всеми необходимыми подрядчиками, сможет выполнить ремонт перед заездом арендаторов. Специалисты возведут перегородки, уложат напольное покрытие, поклеят обои и выкрасят стены.

Татьяна Долгая, менеджер по аренде офисной недвижимости ООО «Сигмаполюс», рассказала о коммерческих условиях аренды и типовых планировках в БЦ Prizma. С компанией-застройщиком можно обсудить возможность арендных каникул, получение помощи от дизайнеров в зонировании и расстановке мебели.



О правовых аспектах договора аренды недвижимости напомнила Светлана Романова, руководитель юридического отдела ООО «Сигмаполюс». Эксперт отметила: договор — это фундамент деловых отношений, при формировании которого важно учесть интересы всех сторон сделки и сохранить гибкость. 

Также гостям представили специалистов компании TENGO. Команда дизайнеров, инженеров, строителей и руководителей проектов презентовала планировочные решения для типовых этажей БЦ Prizma. Ориентируясь на потребности арендаторов, эксперты продумали размещение офисов формата openspace, переговорных, кабинетов руководителей, зон отдыха, кухонь и других необходимых помещений. Решения специалистов можно будет взять за основу перед возведением перегородок и ремонтом пространств.



22 маршрута общественного транспорта и паркинг на 700 машино-мест

После презентации гостей пригласили на экскурсию по БЦ Prizma. Специалисты компании-застройщика презентовали свободные пространства, места общего пользования, скоростные лифты.







Они рассказали о том, как обслуживается бизнес-центр — уже сейчас в холле работают служба охраны и администраторы. Доступ посторонних лиц в БЦ ограничен.



Вместе с экспертами ООО «Сигмаполюс» гости встречи поднялись на лифтах до 13 этажа. Из окон с панорамным остеклением они увидели Партизанский проспект, парк 50-летия Октября, новый Национальный футбольный стадион. 







Также убедились в транспортной доступности бизнес-центра — в паре шагов от него расположена станция метро «Партизанская», остановки автобусов, троллейбусов и трамваев. Всего рядом с БЦ проходит 22 маршрута общественного транспорта.



Для тех, кто решит добираться на работу на личном авто, а также для клиентов и партнеров компаний-арендаторов будет работать многоуровневый паркинг на 700 машино-мест. Кстати, сделать все необходимые покупки до или после работы, сходить в кафе, кино или салон красоты, провести время с семьей в активити-парке сотрудники смогут с максимальной экономией времени — ведь БЦ Prizma является частью одноименного многофункционального комплекса.



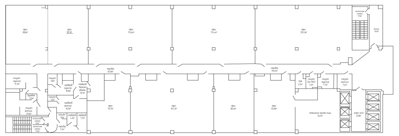
Какие площади доступны для аренды?

Сейчас в бизнес-центре Prizma для аренды доступны помещения на 5-13 этажах. Арендаторам предлагают следующие типовые планировки:



5-6 этажи

7-12 этажи

13 этаж

Квадратный метр с ремонтом в бизнес-центре стартует по стоимости от 35 белорусских рублей  включая НДС. Эксплуатационные расходы при этом составят порядка 7 рублей/м², коммунальные платежи — 4−5 рублей/м².



Телефон для связи и обсуждения всех условий — +375 (29) 334-01-01. Для обратного звонка от представителей компании-застройщика вы можете оставить свой номер в форме ниже.

Нажимая кнопку «Отправить заявку», вы понимаете, что указанные в заявке персональные данные будут предоставлены ООО «Сигмаполюс» (УНП 800006663) для их обработки на основании абз.15 ст. 6 Закона Республики Беларусь № 99-З «О защите персональных данных» с целью заключения и исполнения договора.

 
Теги: Минск
 
 
Чтобы разместить новость на сайте или в блоге скопируйте код:
На вашем ресурсе это будет выглядеть так
21 марта в Минске прошла презентация нового бизнес-центра Prizma. Руководителей и специалистов агентств недвижимости, экспертов по коммерческим площадям, а также...
 
 
 

РЕКЛАМА

Архив (Новости Экономики)

РЕКЛАМА


Яндекс.Метрика