Что за коттеджный поселок вырос рядом с МКАД-2? Здесь уже продают один дом. 21.by

Что за коттеджный поселок вырос рядом с МКАД-2? Здесь уже продают один дом

06.10.2025 16:29 — Новости Экономики | realt.by  
Размер текста:
A
A
A

Источник материала: realt.by

Два года назад мы писали, что на поле неподалеку от Острошицкого городка развернулась большая стройка. Сегодня рядом с логойской трассой вырос настоящий «клубный поселок» из почти 30 коттеджей. Кстати, строил квартал не коммерческий застройщик, а УКС Минского района. Ранее эти дома в свободную продажу практически не попадали, зато сейчас в закрытом квартале с зелеными лужайками и дорожками из плитки продают один новый коттедж. Рассказываем и показываем.


Заказчиком строительства коттеджного поселка на окраине Острошицкого городка выступал УКС Минского района. Квартал занял незастроенный ранее участок в 5,9 га. Всего тут возвели 28 коттеджей. Все жилые постройки расположились на новой улице Яночкины горы. До МКАД отсюда – 12 километров по логойской трассе.

Бывший пустырь заняли блочные дома нескольких типов. Первоначально сообщалось, что коттеджи и таунхаусы строятся для нуждающихся в улучшении жилищных условий, но затем несколько домов предложили всем желающим. Так, весной прошлого года УКС Минского района выпускал проектную декларацию на 128-метровый коттедж, а также на две квартиры в блокированном доме общей площадью 228 квадратов.  Метр тут стоил 3590-3735 рублей (1120-1170 долларов по курсу на то время).


Позже стало известно, что некоторые дома в поселке сделали арендными. К примеру, жилье для своих сотрудников здесь возвел Боровлянский спецлесхоз. 


Коттеджи в закрытом комплексе получились интересными – с современными фасадами, плоскими кровлями и собственными участками. Жилье сдавалось без отделки, но со всеми коммуникациями – электричество, газ, вода и канализация. На территории квартала проложили асфальтированные дороги, тротуары и обустроили детскую площадку.


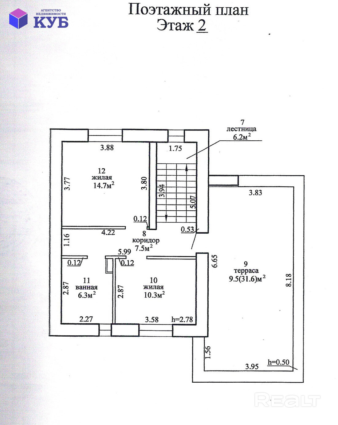
Сейчас в коттеджном поселке на окраине Острошицкого городка продается один дом. Это – отдельно стоящий коттедж площадью 133 квадратных метра. Дом состоит из двух этажей. На первом и втором уровне имеются шикарные террасы.




Внизу расположилась гостиная с кухней, а также прихожая, одна жилая комната и санузел.








На верхнем уровне можно найти еще две жилые комнаты и санузел. Дом предлагается с черновой отделкой.




Все коммуникации в коттедже – центральные (газ, вода, электричество, оптоволокно).


Дом стоит на участке в 10 соток. Хватит места и для фруктового сада, и для детской площадки, и для зоны отдыха с беседкой. Статус земли – частная собственность. На руках у собственника имеются все разрешения на реконструкцию дома и на строительно-нежилые капитальные постройки.



В объявлении отмечается, что Логойский район славится своей природой и чистым воздухом, при этом до Минска можно добраться всего за 10 минут. В самом Острошицком Городке есть вся необходимая для жизни инфраструктура: магазины, школа, детский сад, кафе.

А стоит коттедж в закрытом поселке в Острошицком городке 295 тысяч долларов.

 
Теги: Минск
 
 
Чтобы разместить новость на сайте или в блоге скопируйте код:
На вашем ресурсе это будет выглядеть так
Два года назад мы писали, что на поле неподалеку от Острошицкого городка развернулась большая стройка. Сегодня рядом с логойской трассой вырос настоящий...
 
 
 

РЕКЛАМА

Архив (Новости Экономики)

РЕКЛАМА


Яндекс.Метрика