В элитном районе Минска построили частный дом с технологиями пятизвездочного отеля. Побывали внутри. 21.by

В элитном районе Минска построили частный дом с технологиями пятизвездочного отеля. Побывали внутри

08.10.2025 08:01 — Новости Экономики | realt.by  
Размер текста:
A
A
A

Источник материала: realt.by

В ландшафте элитной застройки Минска появился новый объект, который по уровню оснащения сопоставим с новым пятизвездочным отелем. Этот дом в стиле минимализм выглядит максимально эффектно благодаря оригинальным архитектурным решениям, огромным панорамным окнам и необычной планировке. После появления его в продаже, мы про себя назвали его «минимализм на максималках»: уровень инженерных решений зашкаливает, а столько материалов премиум-класса в отделке мы еще не встречали. Мы съездили на просмотр в Дрозды, пообщались с владельцем и теперь делимся своими впечатлениями. 


Работа с формой

Уже при первом взгляде на дом становится очевидно, что архитекторы получили карт-бланш на проектирование объекта без оглядки на сложившиеся представления об элитной недвижимости – в респектабельных Дроздах с их классическими особняками ничего более современного пока не построили. Смелость и оригинальность архитектурных решений делают этот коттедж на улице Вербной визитной карточкой всей окрестной застройки. А еще мы узнали, что проект номинирован на включение в коллекцию LEGO – так что, кто знает, может дети по всему миру еще будут собирать модель минского дома как символ современной архитектуры Беларуси. 

Началось все с концепции – будущий владелец решил, что в Минске не хватает современных объектов в стиле минимализм. Каким будет дом он представлял – оставалось сделать проект. Со своей визуализацией будущего строения он пришел в архитектурное бюро Zrobim Architects – это как раз их специализация и с задачей они справились.


Для посадки на вытянутые в длину 10 соток архитекторы спроектировали по большей части одноэтажное здание на 500 м2, которое занимает практически половину участка, но если смотреть с улицы, размеры строения остаются загадкой. Только став гостем, понимаешь, что есть еще внутренний дворик с костровой зоной и фонтаном, блок СПА с бассейном. 

Впрочем, есть и второй консольный этаж, который является доминантой архитектурного облика всего дома.

Этот прием создает визуальный эффект парящего объема – в зоне парковки под консолью нет никаких опор. Пластика фасада в зоне консоли приковывает взгляды сложной игрой в геометрию. Заказчик и архитекторы добавили вау-эффект в его восприятии, особым образом оформив проемы: огромные окна утоплены вглубь массива, создавая сложные светотеневые рисунки. 


Фактура премиум-класса

Если форма – это скелет здания, то материалы – его плоть. Понятно, что заказчик и Zrobim Architects не сдерживали себя в рамках эконом-класса, и для фасада выбиралось лучшее, но мы знаем примеры, когда и премиальные материалы не помогают. Здесь же именно тот случай, когда все элементы экстерьера не случайны, подобраны и скомбинированы эстетически и профессионально.


Доминирующую роль играет фасадный керамогранит Laminam. Его гигантские форматы (1х3 метра) и минимальная толщина позволяют создавать практически бесшовные поверхности. Темный матовый цвет и микротекстура материала придают фасаду ощущение цельного, выточенного из единого монолита камня.

Этой холодной элегантности противопоставлена теплота натуральной древесины. Вертикальный планкен из термообработанной лиственницы добавляет композиции слоистости и тактильного тепла. Отметим продуманность проекта на перспективу: рейки закреплены на крупноформатных щитах из ламинированной фанеры. Эта технология не только создает безупречно ровную поверхность без видимого крепежа, но и обеспечивает легкую замену любой ламели при необходимости.


В зоне патио, внутреннего дворика для уединенного отдыха, эта материальная симфония продолжается. Здесь использованы HPL-панели, ламинированный шпон под американский орех. Эстетику фасада поддерживают детали – оконные проемы обрамлены металлическими цельносварными откосами и отливами, окрашенными порошковой краской. Трубы водосточной системы спрятаны под фасадом и не создают визуального шума.



В общем, это тот самый случай, когда можно сказать – «минимализм на максималках».


Размер джамбо

Про окна можно было бы сказать что-то обыденное: «панорамные», «в пол», «французские». Но присмотритесь – они ведь просто огромные! Это окна с размером стеклопакетов «джамбо», что в переводе с английского – гигантский, крупногабаритный. Для них используются специальные стеклопакеты без перемычек из закаленного стекла. Вес у них огромный, установка только профессиональная с использованием подъемного крана, а стоят же они в разы дороже обычных окон.

Но, по мнению владельца, деньги и силы потрачены не зря – с ними окружающий мир становится живой картиной. 


Общая площадь остекления в доме 210 м², все внутренние помещения  естественным освещением обеспечены с избытком. 

Внимания заслуживает входная группа. Трехметровая стеклянная дверь в профиле Schüco со стильной вертикальной красной полоской подсветки – это не просто вход, а высокотехнологичный продукт и эффектный арт-объект. Дверь оснащена тонированным черным стеклом с керамическим напылением, которое обеспечивает приватность от взоров с улицы, оставаясь прозрачной изнутри. Весит она килограммов 300, наверное, но открывается легко – толкни пальцем створку и дверь бесшумно и плавно откроется – благодаря специальным роликам пивот-системы. Это не просто дорого — это по-настоящему круто и запоминается. 


Дверь также оснащена электронным «умным замком» – открывается через пароль или приложение в смартфоне. 


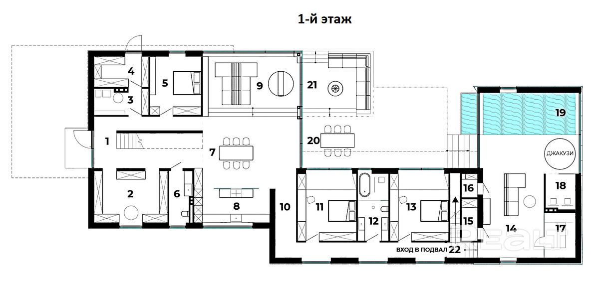
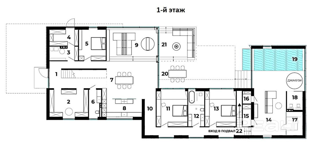
Планировочные решения

Пересекая порог стеклянной входной двери, гость попадает в пространство прихожей с парящей консольной лестницей. Монолитная стена, в которую встроены ее ступени, отделяет прихожую от той части дома(слева от лестницы), где находятся котельная и гостевая спальня. Направо от входа расположена большая гардеробная на два входа с окном и гостевой санузел. 

Ядром первого уровня является обширное open-space пространство, объединяющее гостиную, кухню и столовую. Зона гостиной «утоплена» на несколько ступеней относительно общего уровня пола. Это архитектурно отделяет ее, создавая более камерную и интимную атмосферу. Это пространство напрямую, через панорамное остекление, связано с костровой зоной, обеспечивая плавный переход между интерьером и экстерьером.



Зона кухни организована с рабочим фронтом у окна и островом, который визуально отделяет ее от гостиной. Рядом — столовая с собственным выходом в зону барбекю. За кухней находится приватная часть с двумя детскими спальнями и общим санузлом между ними, окна которых выходят во внутренний дворик.


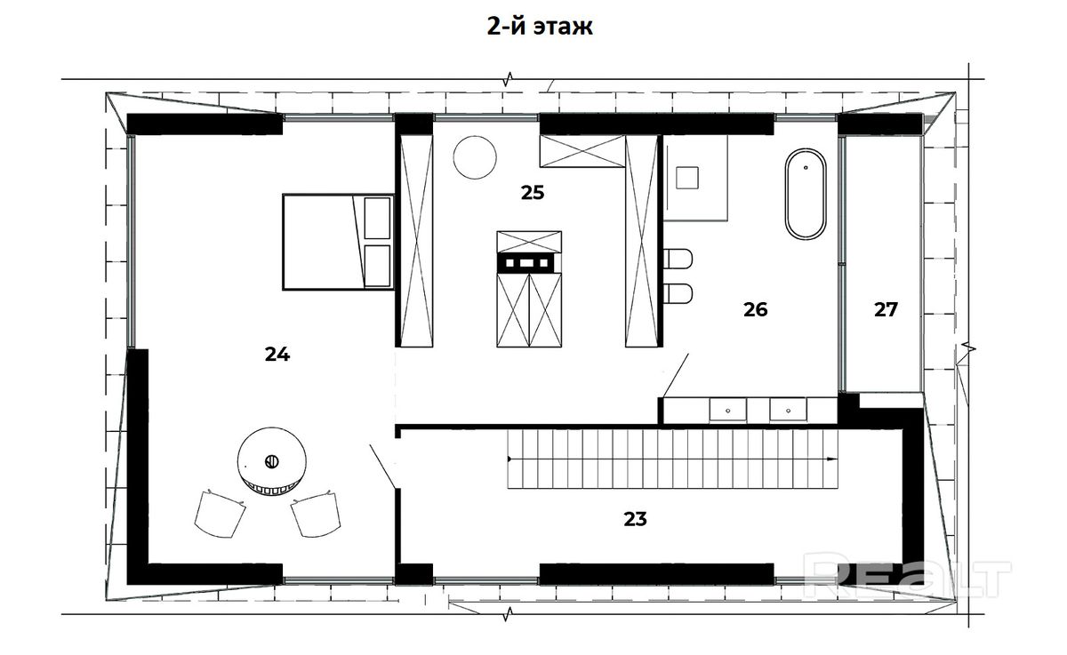
Вся площадь второго этажа отдана под мастер-спальню. Это просторное, залитое светом помещение с панорамными окнами на три стороны и местом для подвесного камина. Из спальни попадаем в светлую гардеробную, где предусмотрена техническая возможность установки современного пневмолифта.

– Он не требует машинного помещения, движется за счет сжатого воздуха и позволяет подняться из прихожей прямо в гардеробную, – объясняет владелец. – Это добавляет дому элемент роскоши и практичности.

За гардеробной находится санузел с ванной у панорамного окна с видом на проспект Победителей. Из ванной, кстати, можно выйти на свою приватную террасу с настилом из лиственницы. Она небольшая, уютная, с ящиками для цветов на парапете. Задумка интересная и реализована грамотно – на террасу выведен кран с водой, к нему можно подключить капельную систему полива по таймеру. 


Террасу можно увеличить хоть в несколько раз – вся крыша на доме эксплуатируемая. При этом можно не переживать за целостность и герметичность кровли – здесь использовали долговечное и надежное бесшовное покрытие Giperdesmо.





Инженерия как искусство

Согласитесь, мы редко испытываем эмоции в топочной: розетки, трубы и котел есть, работают ну и ладно. Но наш случай особенный, владелец говорит, что у него в доме обеспечен самый  высокий уровень комфорта, сопоставимый с лучшими пятизвездочными отелями. Заявление громкое, идем в котельную. Первое впечатление – мы попали в идеальный мир технократа: пространство прочерчено трубами из нержавейки, насосные группы, оборудование разных систем выстроено в ровную линейку. 



И раз мы уже здесь, попробуем рассказать, что и за что в этом доме отвечает. 

Вы когда нибудь задумались, как часто нужно сменить воздух в комнате, где вы спите? Оказывается, есть такое понятие как кратность смены воздуха – это показатель того, сколько раз за час полностью обновляется воздух в помещении, выражается в «разах в час». Норма – 3 раза час. 

Приточно-вытяжная установка VTS в этом доме обеспечивает шестикратный воздухообмен, то есть воздух в помещениях  обновляется каждые 10 минут. Заметьте – делает это бесшумно, незаметно.

Установка обладает производительностью 1200 кубических метров в час, при этом фактическая потребность составляет 800 кубических метров в час. Это позволяет оборудованию работать на 40% мощности.



Система оснащена двойной системой фильтрации входящего воздуха, обеспечивающей его высокую степень очистки от пыли, аллергенов и других загрязнений. 

В холодное время года установка подогревает поступающий воздух до заданной температуры (например, 21 градус Цельсия). Подогрев осуществляется с помощью дополнительной секции, получающей горячую воду от отдельного контура котла.

Для повышения энергоэффективности система использует технологию рекуперации тепла. Теплый воздух, удаляемый из помещения, проходит через теплообменник и предварительно нагревает входящий свежий воздух. Это позволяет значительно снизить потребление энергии на подогрев воздуха, особенно в зимний период.

На этом, в принципе, можно было бы и остановится, но владелец интегрировал в систему дополнительное оборудование – увлажнитель воздуха. С его помощью в доме поддерживается оптимальный уровень влажности зимой. 

Комфортный температурный режим летом обеспечивает система кондиционирования LG. За отопление же отвечает конденсационный газовый котел Buderus мощностью 72 кВт (при потребности 47 кВт). Как и в случае с вентсистемой, у него большой запас по мощности. Логика в этом такая – оборудование не работает на износ, что гарантирует больший ресурс и минимизирует необходимость частого обслуживания. 

Владелец приводит аналогию с автомобилем с 6-ти литровым двигателем: вы редко едете на максимальной скорости, используя все возможности по мощности, но знание, что под капотом 6 литров, а не 2, дает уверенность и комфорт.



Отопление построено на системе зональных теплых полов с погодозависимой автоматикой. Спроектирована и смонтирована она профессионально: 27 независимых контуров проложены трубами швейцарской компании Compipe. Каждый контур оснащен сервоприводом, что позволяет программировать индивидуальный температурный режим для каждой комнаты (например, +19°C ночью для лучшего сна и +22°C утром для комфорта).

Все системы между собой дружат и работают в автоматическом режиме. Все можно интегрировать в любую систему "Умный дом".

Благодаря тому, что дом находится в городской черте, то все внешние коммуникации центральные. Водопроводную воду владелец счел не идеальной, поэтому предварительно она проходит через американскую систему умягчения и очистки. 

Домашний СПА

Отдельный блок занимает SPA-зона, спроектированная и выполненная как автономный релаксационный комплекс. Здесь реализована редкая для частных домов мечта – переливной бассейн, отвечающий премиальному уровню.


– В отличие от самого распространенного и более дешевого скиммерного бассейна, где вода уходит на очистку с характерным хлюпаньем, здесь вода переливает через борт и уходит на очистку абсолютно бесшумно, – объясняет владелец. –  Перреливной бассен обеспечивает максимально эффективную очистку воды и эстетичный вид с уровнем воды на уровне бортика.  Это красиво, стильно, минимализм сохраняется.

Чаша бассейна отлита, оборудование смонтировано, но финальной облицовки пока нет. Рядом напротив панорамного окна расположено джакузи на двоих. 

Зона СПА дополнена сауной (помещение подготовлено для установки как электрической, так и дровяной каменки).

В этом блоке также находится постирочная и отдельная комната для переодевания с местами для хранения белья, халатов и прочих атрибутов СПА-процедур.

Все оборудование бассейна смонтировано на техническом этаже под СПА блоком. Здесь, как и в котельной, все трубы, краны и провода собраны в технологический натюрморт. 



Здесь обнаруживаем еще одну приточно-вытяжную установку. Она специализированная, с функцией осушения воздуха. Работает независимо от общей вентиляции дома, что позволяет поддерживать оптимальный уровень влажности именно в зоне с бассейном. Благодаря этой системе нет конденсата на окнах, стенах и других поверхностях, а в подвале под бассейном совершенно нет «подвального» запаха и сырости.

Гараж как сервисная станция

С улицы может показаться, что гараж является часть дома, но это не совсем так – по сути это отдельное строение, гармонично вписанное в общую архитектуру.

В нем два машино-места, въезд прямо с улицы. Гараж сквозной – выход из него организован почти прямо к парадному входу дома. Внутри просторно – ходить бочком не придется.


В гараже есть все для обслуживания авто: полы с профессиональным полимерным покрытием (Flowcrete) имеют уклон к решетке канализации, подведены горячая и холодная вода. Всё это позволяет легко помыть машину прямо в гараже: грязь и талый снег стекают в ливневку, а пол можно быстро очистить с помощью мини-мойки.

Гараж отапливается и вентилируется. Это значит, что зимой вы садитесь не в ледяной салон, а в теплую машину, которая к утру полностью высохла после мойки. 

– Это тот уровень бытового комфорта, который избавляет от лишних хлопот и действительно приносит радость. – говорит владелец. – Утром вы садитесь за руль теплого и чистого автомобиля.

Дополняет картину станция быстрой зарядки для электромобилей.



Под нависающей консолью дома расположена парковка. Ею удобно пользоваться как летом, так и зимой – она с подогревом, так что снег и лед на ней не задерживается. Но мы бы пользовались парковкой хотя бы из-за ворот – честное слово, никогда не видели таких. Восторг вызывает способ открытия-закрытия – секция шириной 4 метра, состоящая из металлических ламелей просто уходит под землю, а после так же выезжает. Работают они в любой мороз и снегопад. Производит ворота компания Fancyfence, в Европе и в США с ними уже хорошо знакомы. И кстати, по словам владельца, Администрация Белого дома собирается установить подобную систему по всему периметру резиденции (1,8 км).

Ландшафт на вырост

Ландшафтный дизайн здесь задуман не как статичная картинка, а как живое пространство, дающее новому владельцу полную свободу творчества. Участок подготовлен к жизни: уложен рулонный газон и работает система автополива. 

– Мы сознательно оставили свободные две сотки земли с подведенными водой и электричеством, –  поясняет владелец. –  Это чистый холст, на котором можно обустроить игровую зону с батутами, поставить спортивные тренажеры, организовать мини-огород или сад. 




Особое внимание уделено патио – внутреннему дворику. Его мощение выполнено из натурального доломита, но здесь важно не название камня, а тактильное ощущение, которое он дарит. 

– Когда ты босиком ходишь по этому покрытию, у тебя возникает полное ощущение, что ты идешь по песку на берегу моря, – делится впечатлением владелец. – Этот камень, по сути, и есть спрессованный доисторический песок. Он не нагревается на солнце, всегда остается прохладным и создает неповторимый эффект единения с природой.





В патио находится зона кострища, у панорамного окна у бассейна – минималистичный фонтан: вода струится из блока черного гранита и уходит прямо в белые декоративные камни. По задумке, уровень воды в бассейне будет находится в одной плоскости с фонтаном. Таким образом будет создаваться визуальный эффект, что вода из бассейна переливается на улицу. 




Этот совершенный с технической точки зрения дом под чистовую отделку стоит 1 950 000 долларовКак бы пафосно это не прозвучало, но за эти деньги вы получаете частный пятизвездочный отель, в котром вы будете главным постояльцем.

 
Теги: Минск
 
 
Чтобы разместить новость на сайте или в блоге скопируйте код:
На вашем ресурсе это будет выглядеть так
В ландшафте элитной застройки Минска появился новый объект, который по уровню оснащения сопоставим с новым пятизвездочным отелем. Этот дом в стиле минимализм...
 
 
 

РЕКЛАМА

Архив (Новости Экономики)

РЕКЛАМА


Яндекс.Метрика