Просторные квартиры с видом на город и площади для бизнеса на первых этажах. Что сейчас предлагают в «Гулливере» — одном из самых ожидаемых ЖК Минска. 21.by

Просторные квартиры с видом на город и площади для бизнеса на первых этажах. Что сейчас предлагают в «Гулливере» — одном из самых ожидаемых ЖК Минска

26.08.2025 08:01 — Новости Экономики | realt.by  
Размер текста:
A
A
A

Источник материала: realt.by

Мы продолжаем следить за масштабным строительством, которое развернулось в районе станции метро «Пушкинская». В марте наблюдали, как в первом доме ЖК «Гулливер» ставят окна, как работают с котлованом под второй дом. Спустя полгода снова уделим внимание и ходу стройки, и актуальным предложениям по жилью и встроенным помещениям для бизнеса. Какие варианты предлагают покупателям? Сколько они стоят? Узнали все подробности напрямую у заказчика строительства — УП «УКС Мингорисполкома».


Зеленый район с оживленным трафиком

Жилой комплекс расположился в паре минут ходьбы от станции метро «Пушкинская». Локация — максимально оживленная. Здесь ходят автобусы, троллейбусы и маршрутки, работают Ледовый дворец, рынок и десятки магазинов. За озелененность и свежий воздух отвечают многолетние деревья, высаженные еще 40-50 лет назад, бульвар Данилы Сердича, скверы им. Притыцкого и Дубки. Чуть подальше расположены еще два парка, Тивали и Космос.



За что местные ценят свой район и почему не хотят переезжать отсюда? Многие отмечают:

  • неплотную застройку, много воздуха на улицах и во дворах;
  • школы, гимназии, детские сады для малышей;
  • возможность быстро попасть как в центр Минска, так и за МКАД.


Здесь много молодых семей, детей, подростков, квартиры в локации с хорошей транспортной доступностью часто арендуют студенты и начинающие специалисты. Именно поэтому цена квадратного метра в районе, скорее всего, будет расти, а коммерческие помещения — разбираться еще на этапах старта продаж.



Шесть домов с подземным гаражом-стоянкой и зонами рекреации

В востребованном у минчан районе растут дома жилого комплекса «Гулливер». Всего по проекту предусмотрено шесть домов: два каркасных, четыре — панельных. Сейчас работы ведутся на первых двух, поэтому мы сосредоточим всё внимание на них.



Первый дом — 19-этажное здание с 5 сквозными подъездами. Первый этаж отдан под коммерческие помещения, остальные 18 — под жилье. Благодаря особенностям рельефа, первый жилой этаж дома получился достаточно высоким. С проспекта Пушкина он выглядит как третий, с территории двора — как второй.



Второй дом станет практически копией первого. За исключением количества подъездов: их здесь будет 4. Первый этаж также станет коммерческим, чтобы бизнес мог предложить жителям «Гулливера» и окрестных домов нужные товары и услуги.

Наружные стены надземных частей обоих домов заполняют блоки ячеистого бетона, блоки керамзитобетона, монолитные, со сплошным утеплением минераловатными плитами. С первого по четвертый этажи, а также в зонах входных групп, дома отделыват вентфасадами из керамогранита. Далее, по 13 этаж, снаружи ляжет декоративная штукатурка с имитацией кирпичной кладки или в виде гибкого кирпича на сетке. А стены на 14-19 этажах покроет вентфасад. Также в планах застройщика по внешней отделке — декоративные элементы из алюмокомпозита или стали. Вот как выглядят рендеры:







Лифты и подъезды делают с учетом требований безбарьерной среды.

Жителям будет комфортно парковаться. Под дворовой территорией ЖК «Гулливер» предусмотрена двухуровневая гараж-стоянка. Ее общая площадь — 11 600 м², количество машиномест — 313. Интересно, что крыша гаража-стоянки станет эксплуатируемой.

Внутренняя инфраструктура комплекса, которую обеспечит застройщик:

  • детская площадка;
  • спортивная площадка;
  • парковые зоны;
  • пешеходные дорожки;
  • малые архитектурные формы;
  • современное освещение.

Что сейчас предлагают для жизни и бизнеса в ЖК «Гулливер»?

Работа на территории комплекса кипит. В первом доме сейчас заканчивается оштукатуривание лестничных пролетов и клеток, выкладывание плитки и внесение финальных штрихов отделки в местах общего пользования. 



Практически готовы квартиры, вскоре здесь будут остеклять французские балконы. Жилье, напомним, сдадут с черновой отделкой:

— В квартирах предусмотрено выполнение черновых отделочных работ: оштукатуривание стен, стяжка пола, сантехническое и электрическое обеспечение с установлением розеток и выключателей, радиаторов, счетчиков на горячую и холодную воду, унитазов. В некоторых квартирах будут панорамные окна. Лоджии мы остеклим, — отмечает специалист УП «УКС Мингорисполкома» Сергей Капитула.





Во втором доме возводят каркас, заливают бетон. В первых двух подъездах работы ведутся на уровне третьего жилого этажа, во вторых двух — выходят к типовым жилым этажам.





Первый дом планируют сдать в январе 2026 года, второй — в мае 2027-го.



Одновременно с этим обустраивают общую территорию: после прокладки коммуникаций делают обратную засыпку пешеходных дорожек. Верх гаража-стоянки также финально засыпали и покрыли щебнем, чтобы подготовить к полноценной эксплуатации.

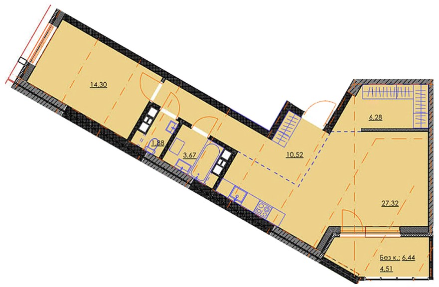
Сейчас в первых двух домах для покупки предлагают как квартиры, так и встроенные помещения. Для начала изучим жилую недвижимость. Рассмотрим одну из самых интересных планировок:



Общая площадь этой двухкомнатной квартиры с окнами на две стороны, балконом с французским остеклением и впечатляющим видом на город — 68,48 м². Дополнительно к ней можно купить место на паркинге за 70 000 BYN, это опционально. Так, при покупке места на паркинге квадратный метр в квартире будет стоить 4800 BYN, а без покупки места — 5000 BYN.



Изучить все планировки и найти свое решение вы сможете на сайте ЖК.

Уже сегодня предприниматели и управляющие различных компаний могут выбирать встроенные помещения для ведения бизнеса. Так, в первом доме сейчас предлагают 8 решений — от 75,79 м² до 129,41 м².



Несколько из предлагаемых планировок:





Высота потолков во встроенных помещениях составляет 5,5 м, каждое из них — с отдельным входом.

Внутренние стены — монолитные. Перегородки — из блоков керамзитобетона. Витражи встроенных помещений сделаны из алюминиевого профиля, входные группы заполнены многослойным безопасным стеклом.



Внутри будут сделаны проводка, стяжка, штукатурка, чтобы владельцы могли сразу же приступить к ремонту и адаптировать площади под нужды своего бизнеса. Стоимость встроенных помещений: 12 000 BYN/ м².



Выбирать свое решение для бизнеса стоит уже сейчас. Даже на этапе ремонта и заселения, и, конечно, спустя время, когда жители полноценно займут свои квадратные метры, им будут актуальны:

  • магазины формата «у дома»;
  • кофейни, кафе, семейные заведения;
  • банки, аптеки, зоомагазины;
  • предприятия сферы услуг.


Как купить квартиру или встроенное помещение в жилом комплексе?

Узнайте о предложениях в ЖК «Гулливер» больше, обратившись к специалистам УП «УКС Мингорисполкома» по номерам +375 (44) 571-50-00, +375 (33) 398-20-00. Адрес офиса продаж: г. Минск, ул. Советская, 17. Режим работы: пн–чт: 8.45-18.00, пт: 8.45-16.45, перерыв: 13.00-14.00.

 
Теги: Минск
 
 
Чтобы разместить новость на сайте или в блоге скопируйте код:
На вашем ресурсе это будет выглядеть так
Мы продолжаем следить за масштабным строительством, которое развернулось в районе станции метро «Пушкинская». В марте наблюдали, как в первом доме ЖК «Гулливер»...
 
 
 

РЕКЛАМА

Архив (Новости Экономики)

РЕКЛАМА


Яндекс.Метрика