«В эти дома въехали тысячи переселенцев». Как живется в панельках на краю Малиновки

15.10.2025 08:02 — Новости Экономики | realt.by  
Размер текста:
A
A
A

Источник материала: realt.by

Около сорока лет назад эта территория Минска даже не была частью города. Обычная деревня, окруженная лесами и полями, на которые часто выводили пасти коров. Примерно с середины 1980-х Малиновку начали застраивать многоэтажками. По трагическому стечению обстоятельств новый жилой район стал вынужденным домом для эвакуированных из Чернобыльской зоны людей. Realt отправился в один из микрорайонов - Малиновку-4, чтобы узнать у местных, как сильно изменилась жизнь здесь за последние годы.


Строительство панелек в Малиновке-4 началось в конце 1980-х годов, и уже в 1991-м сюда заселили первых жильцов. С оригинальностью архитектурных проектов особо не заморачивались: так же, как и в других микрорайонах, тут можно увидеть девятиэтажки в форме змеек серии М-464.

Когда новостройки начали обживаться, никакой инфраструктуры вокруг не было. Чтобы добраться до центра города, нужно было сильно постараться. Спустя более чем тридцать лет ситуация, конечно же, изменилась: общественный транспорт ходит часто и много, а за буквально пятнадцать минут можно добраться до метро. Появились здесь и детские сады, школы, поликлиника, магазины. 



Продолжает развиваться и строительство новых многоэтажек. Так, относительно недалеко возводится ЖК “Вершина”, объединяющий восемь монолитных домов, собственные парковочные места и закрытую территорию. 

“Дети гуляли не на площадках, а на стройках, а вокруг поле и наш единственный дом”

На территории микрорайона Малиновка-4 есть небольшой сквер - любимое место отдыха многих местных. Рядом с ним  встречаем Ирину - она неспешно прогуливается с собакой и наслаждается отличной погодой. Малиновка-4 стала для нее домом целых тридцать лет назад, когда панельки только-только начали возводиться в окрестностях.

- Мы переехали сюда с родителями, когда я ходила в третий класс. Были переселенцами из Брагина. Им дали тут квартиру, и по сути все мое детство прошло здесь. Тогда тут не то, что каких-то магазинов и инфраструктуры, нормальных дорог даже не было. Дети гуляли не на площадках, а на стройках. А вокруг поле и наш единственный дом. Со временем, конечно, многое изменилось. Микрорайон застраивался, только многоэтажек в окрестностях появилось сколько, магазинов. Есть школы, детские сады, поликлиники. Инфраструктура, в целом, отличная, - отмечает местная жительница. 




Среди всего многообразия объектов рядом, она обращает внимание, что в окрестностях все же не хватает физкультурно-оздоровительного центра. Поэтому в бассейн приходится ехать далековато, а это совсем не удобно. То же самое с культурными развлечениями.

- Транспортное сообщение у нас тут хорошо развито. Можно с легкостью добраться до метро, автобусы и троллейбусы часто ходят. Но все упирается во время. Его на дорогу тратить порой совсем не хочется. Мыслей переселиться куда-то тоже не было. Мне очень нравится, что рядом с домами обширная зеленая зона. Да и привыкла я с детства здесь жить, очень тихо и спокойно, - подчеркивает Ирина.



Так как у нее есть домашний питомец, местная жительница часто выходит с ним на прогулки. Однако, несмотря на обилие зеленых зон, специальных площадок для собак здесь нет. Ирина отмечает, что их появление не помешало бы. “В остальном, здесь тихий район, не криминальный. Без страха могу спокойно выйти в четыре утра гулять с собакой и буду чувствовать себя очень комфортно”, - рассказывает местная жительница.





“Перестановки частенько случаются, но они не глобальные”

Еще одна Ирина переехала в Малиновку-4 к своему мужу, и уже около двадцати лет живет здесь.

- Какие-то изменения были. Например, раньше возле дома было поле, на котором местные часто выгуливали собак. Его несколько лет назад засадили деревьями. Теперь там такой небольшой парк. Но, кстати, животных в нем все также продолжают выгуливать. А еще недалеко от наших домов, через дорогу, есть лес. Но мы в него не ходим, потому что зачастую можно встретить людей в неадекватном состоянии. У них там какая-то точка сбора. Изменилось, конечно же, количество магазинов - их стало намного больше, причем разных. Открылся и пункт выдачи Wildberries. Такие, так сказать, перестановки частенько случаются, но они не глобальные. Если брать какие-то кардинальные новшества, то такого даже не вспомню, - замечает она.



Местная жительница обращает внимание, что в Малиновке-4 не хватает развлечений для детей. До ближайших центров - ехать на Петровщину. А во дворах - только старые детские площадки, которые как обустроили лет десять назад, так с того момента особо и не обновляли. Даже по части покраски и ремонта работы бывают не частыми. 




Ирина вместе с семьей живет в стандартной панельке, построенной в 1994 году.

- По качеству застройки, конечно, есть нюансы, но они терпимые. Больше напрягают жильцы дома. Понятно, что мы все разные, но то, как соседи иногда относятся к месту, где живут, поражает. Ухаживать за подъездом некому, уборка у нас производится редко. Даже вот по графику написано, что подъезд должен мыться раз в месяц, но этого не случается. Я негативно отношусь к курению на общей территории, а соседям нормально. Часто оставляют за собой бычки, какие-то бутылки. Когда начинаю выговаривать им, то никак не реагируют на это. Уборка со стороны - это хорошо, но вообще все зависит от самих жильцов, нужно, чтобы они серьезнее относились к этому вопросу, - обращает внимание она.


Местная жительница говорит, что соседи часто меняются - многие владельцы квартир либо сдают их, либо перепродают. “Здесь же жилье давали чернобыльцам. С тех времен многие бабушки и дедушки поумирали, сюда заселились их дети и внуки. А кто-то, наоборот, забрал родителей к себе, а их жилье продал. В итоге хватает тут и стариков, и молодежи. Часто можно встретить студентов”, - отмечает женщина.





Ирина отмечает, что переезжать из этого места не было желания.

- Скажем так, я уже к нему привыкла. Думая на перспективу, понимаю, мне удобно выглянуть из окна и увидеть, что в детском саду под окнами гуляет мой ребенок. То есть далеко его куда-то отвозить не надо. Школа, детская и взрослая поликлиники, небольшой рынок, магазины - все это в нескольких шагах от дома. Когда-то я жила на проспекте, и для меня это было некомфортно. Окна не открыть. А если открываешь, то совсем не слышно, что говорит собеседник. Очень шумно. В Малиновке же нет таких глобальных дорог, очень спокойно, и мне это нравится, - подчеркнула она.


“Бардак на улице последние лет пять”

Вдоль сквера, который находится практически в центре микрорайона, с палочками для скандинавской ходьбы прогуливается Валентина Георгиевна. На Малиновку она перебралась в начале 1990-х годов. Тогда сюда многих переселили в связи с Чернобыльской трагедией. 

- Микрорайон по этой причине и начал застраиваться в те времена. Дома возводились побыстрее, людям нужна была жилая площадь. В результате, в многоэтажки въехали тысячи переселенцев. Но уже прошло время, из тех, кто изначально заезжал, многие ушли из жизни, однако остались их дети. Я приехала сюда в 1992 году из Кишинева. Сама белоруска, а муж - военный. Так, прошло больше тридцати лет, как живу здесь, - вспоминает Валентина Георгиевна.




Местная жительница очень любит дворики в микрорайоне. Ей нравится, что вокруг много зелени, среди которой можно заниматься любимым хобби - скандинавская ходьба, как она сама говорит, помогает ей держать тело в тонусе и быть всегда на позитиве. “Обычно я хожу большой круг, по времени где-то двадцать минут. Приятно, конечно, что вокруг много зелени, а осенью еще более яркие краски - оранжевые, желтые, красные. А еще ощущается, что воздух у нас тут чистый, не сравнится с центром города”, - обращает она внимание. 



Омрачает ситуацию только то, что местность плохо убирается. Действительно, на улицах разбросаны какие-то упаковки, фантики, бумага и бутылки.

- Такой бардак последние лет пять. Не знаю, с чем это связано, но до этого все было чистенько, досконально убирали. А потом резко стало не хватать уборщиков, старые уволились, пришла молодежь, которой эта уборка, видимо, не нужна. Не уточняла, какая ситуация у соседних микрорайонов, но думаю, примерно такая же. Хотя вот дальше, за дорогой, как будто уже чище становится. У нас же, особенно, возле сквера, который относительно недавно засадили молодыми деревьями, какой-то ужас творится. В этом и сами люди виноваты. Часто можно увидеть, что молодежь сидит на лавочках возле подъездов, в мусорку им выбросить бумажки лень, кидают прямо под ноги. Это тоже никуда не годится. Еще и собачники за своими питомцами часто не убирают. Иногда идешь, и прямо посреди дороги лежит сюрприз. Хочется всегда узнать, ну, неужели так трудно убрать, чтобы всем было комфортно. К сожалению, со временем ситуация лучше не становится в этом вопросе, - подчеркивает Валентина Георгиевна.





“Многоэтажкам больше тридцати лет, и они нуждаются в ремонте”

Также с момента появления в микрорайоне первых домов в одну из панелек заселился Михаил Петрович

- Тогда нужно была быстрая жилплощадь для переселенцев. Соответственно, и дома появлялись ускоренными темпами. Сейчас строят по-другому, лучше. А нашим многоэтажкам уже больше тридцати лет и, очевидно, они нуждаются в ремонтах. Хотя бы замене труб, с ними уже все плохо, часто прорывают в подвалах. Но пока насчет капитальных ремонтов каких-то ничего не слышно, - рассказывает он.


Кроме трубопровода, беспокоит местного жителя и шумоизоляция. Часто у него в квартире отчетливо слышатся крики из соседних квартир, иногда даже просто “разговоры” телевизора. 

- Не исключаю, что это мне так повезло с соседями, что они часто ссорятся. Вроде и привык за столько лет к этому, но иногда бывает сложно, особенно, когда пытаешься заснуть, а рядом разговоры на повышенных тонах. Сам же микрорайон, наоборот, очень тихий и спокойный. Не в моем конкретно доме, но в соседних можно рассмотреть варианты семейным парам. Тут неплохие условия для детей - рядом сады и школы. Насколько я знаю, мест всегда хватает. Еще и воздух чистый, - замечает он.




Что здесь продается?

Всего в Малиновке-4 предлагается более 20 вариантов квартир. При этом их стоимость варьируется от 60 до 155 тысяч долларов.

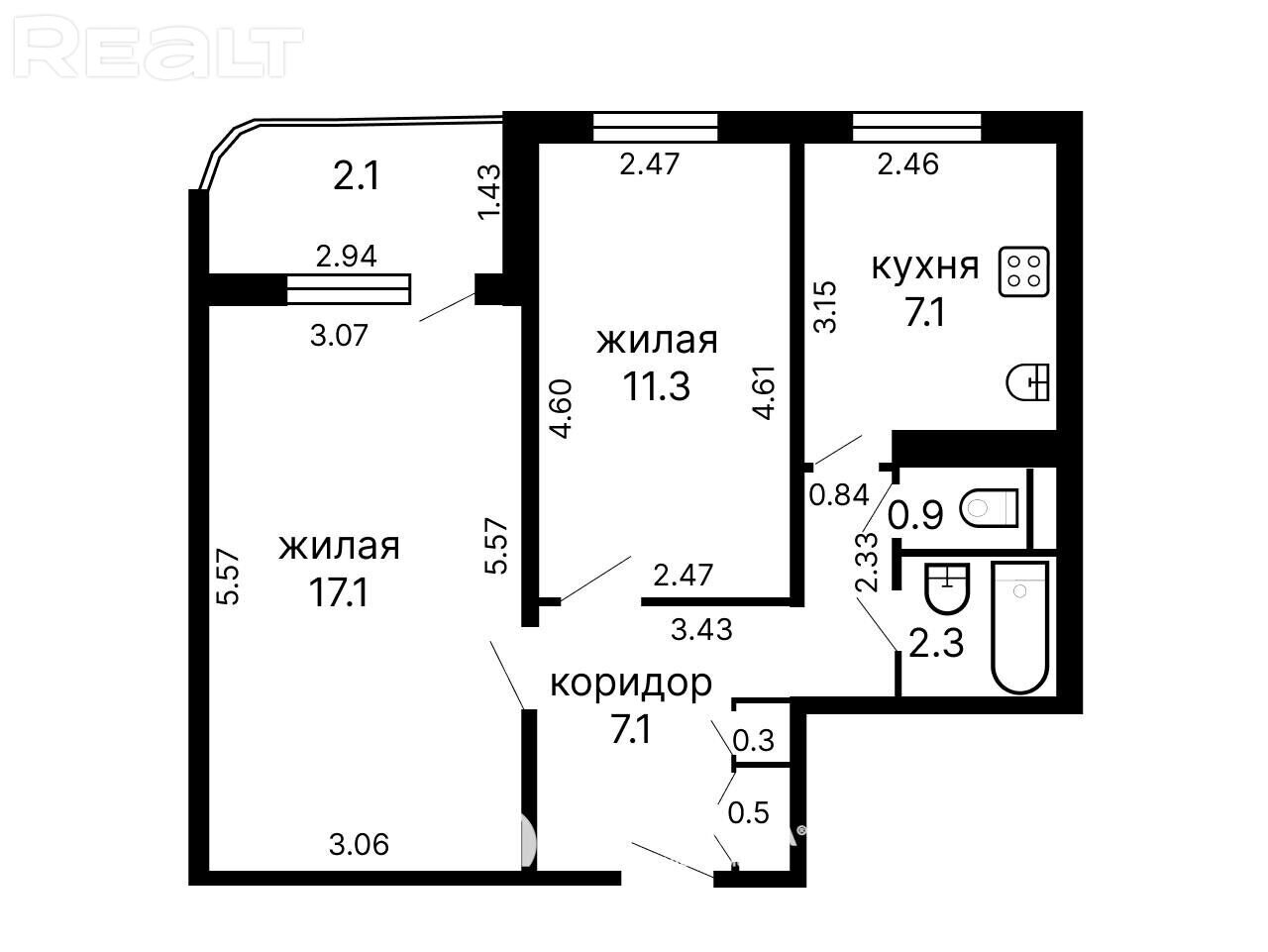
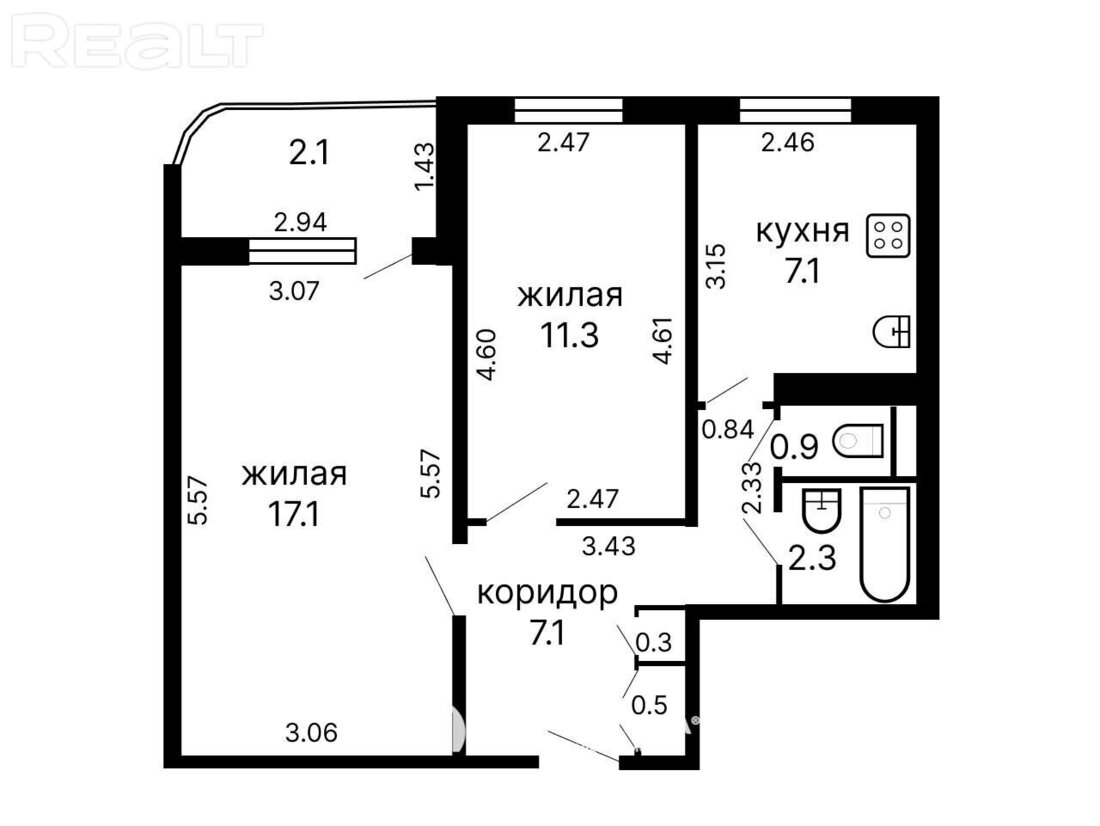
Наиболее доступный вариант - это светлая однушка на четвертом этаже девятиэтажки 1992 года постройки. Общая площадь квартиры составляет 35,1 квадрат. Из них 16,7 квадратов занимает комната и 7 - кухня. Санузел в квартире - раздельный. Также есть лоджия, выход на которую из кухни. В квартире не сделан ремонт, поэтому после покупки можно обустраивать ее сразу по собственному желанию. Стоимость такой однушки оценивается в 60 тысяч долларов (1 709 тысяч долларов - за метр квадратный). 








Самый дорогой вариант из представленных в базе Realt - это четырехкомнатная квартира. Находится она на шестом этаже в доме, введенном в эксплуатацию также в 1992 году. Ее общая площадь - 82 квадрата. Две жилых комнаты в ней по 14 метров квадратных, одна - 17,2 квадрата и еще одна - 12,4. Квартира полностью готова к проживанию, в ней сделан ремонт. Выровнены стены, полы и потолки, заменена проводка. По договоренности бывшие владельцы могут оставить мебель и технику. Также в квартире - двойная лоджия и окна выходят на две стороны. Есть кладовая для хранения. Просят за эту квартиру 155 тысяч долларов, то есть метр квадратный обойдется в 1 890 тысяч долларов.



Также предлагается вариант двухкомнатной квартиры в панельке 1992 года постройки. Находится она на третьем этаже. Общая площадь составляет 46,6 квадратов. В квартире сделана современная отделка, она готова к заселению. Ремонт выполнен с использованием практичных материалов. В комнатах уложен ламинат, а на кухне - керамическая плитка. Двухкамерные окна Salamander обеспечивают высокий уровень тепло- и шумоизоляции. В квартире - застекленный балкон и раздельный санузел. Бывшие владельцы оставят встроенную мебель, кухню, бытовую технику и холодильник. Такая двушка оценивается в 91 900 тысяч долларов (квадрат - 1 972 тысячи долларов).










Кстати, все эти квартиры можно купить в лизинг. А бесплатная консультация - вот здесь.

 
Теги: Минск
 
 
Чтобы разместить новость на сайте или в блоге скопируйте код:
На вашем ресурсе это будет выглядеть так
Около сорока лет назад эта территория Минска даже не была частью города. Обычная деревня, окруженная лесами и полями, на которые часто выводили пасти коров....
 
 
 

РЕКЛАМА

  • «В эти дома въехали тысячи переселенцев». Как живется в панельках на краю Малиновки 00:00, realt.by
  • Все новости

Архив (Новости Экономики)

РЕКЛАМА


Яндекс.Метрика